Unless you are of noble stock and used to living in a castle with servants, I am almost certain that you would agree that a 50 square home is a large home.
Eden Brae’s Waldorf Grange 50 is a monstrously large house.
There’s simply no other way to describe it. At various points in our journey, people have remarked that we are building a large home. The salesperson said it was large, the lady at PGH bricks said it was large, James Treble said it was large, various other colours consultants said it was large and our site supervisor said it was large. That’s a decent subset of people, and none of them royalty as far as I know.
And yet, despite all that space that we have available to us, I cannot help but reflect on the lack of useable space in our floor plan.

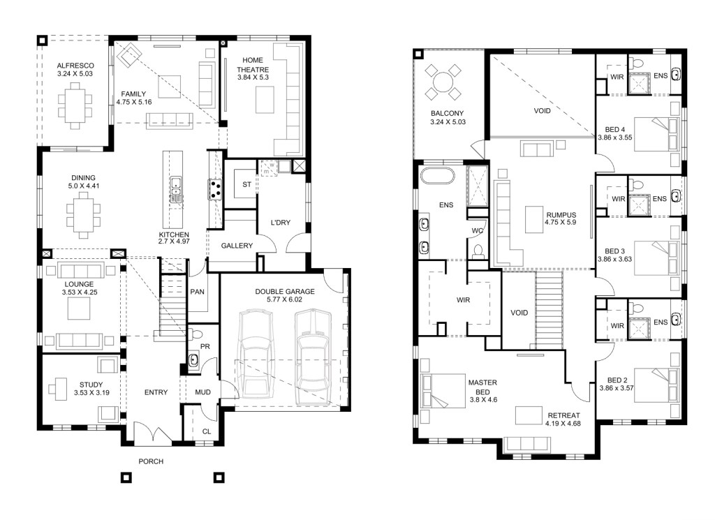
By far the larger space in our home will be the open plan living area, which consists of the lounge, dining, kitchen and family “rooms”.
Don’t get me wrong, it’ll be absolutely grand once it’s furnished and we’re settled. Maybe not quite fit for royalty, but perhaps ex-royalty who now wish to make a living pontificating about minimising carbon footprints while flying on private jets. I digress…
Despite all this space, we’re left with a very basic conundrum: where are we going to watch tv?
Now, if you’re the type of person who says smugly “I don’t own a tv” well then good for you. While the sun shines out of your sanctimonious arse, you should probably realise that the person who has just received your smug words thinks you’re a tool. I digress again…
Like it or not, television, or rather it’s largely streamed modern form, is an integral part of the way out family spends its leisure time. So if we are to maximise our enjoyment of our home and of its largest space, it stands to reason that we would want to watch tv there.
But where do we put a tv? Despite the ample space available to us in this open plan area on steroids, there exists no good location for that most humble and necessary of modern appliances.
Across this large expanse, there are only two walls where a television could feasibly be placed: wall between the lounge room and study, and the wall between the family room and the home theatre. Both of these options leads to compromised furniture layouts in my view.
Placing a tv on the wall of the lounge room means that we would then put a long sofa opposite this wall, thereby closing up the space between the lounge and the dining room. That’s not necessarily a bad thing, as it may help further delineate the different functional areas. But would we only have a three seater in this room? What’s more likely is that we would want some arm chairs facing the three seater in case we wish to use the area as a sitting room for those rare occasions when we prefer to converse with a live human vs watching a fake one in glorious 2D. So then this means, we’d have two arm chairs on either side of the television – a somewhat strange layout.
Putting a tv on the wall of the family room means we would then need to arrange sofas that would sit either in front of those lovely large windows at the back of the house, or in front of a set of sliding glass doors. Both options are not ideal as they may visually block off all that glass, defeating the purpose of using glass to open the space.
The family room is the space with the most visual appeal in the Waldorf 50. It isn’t an exaggeration to say that this space was the driving reason behind why we chose this home. Sure, this is show-off space, but it’s also a space that we want to enjoy to its full potential day in, day out. Will a television here ruin its aesthetic appeal and reason why we chose the Waldorf 50? Or will a television here facilitate more time in our favourite part of the house, and actually increase our quality of life even if it may be an aesthetic compromise?
