We got an email from Eden Brae last week saying that we are now in the construction phase. It's been about 13 months since we signed the fixed price tender. We signed our tender with Eden Brae in early November 2018. After that, we waited a month for our colours appointment; took another three months … Continue reading We’re now officially in “construction”!
Category: Pre-construction
A pleasant surprise
Sometimes people surprise you on the upside. Just after our last post, Eden Brae lodged our development application with council. After about a month, we got some feedback from council on: 1. How our build would impact the conservation area one block over - the (obvious) answer to that is: it wouldn't. 2. They needed … Continue reading A pleasant surprise
The benefit of talking to others
In the process of deciding what home to build, which builder to choose, and what features of a home to wish for, we found a treasure trove of information and personal experiences online from which we could learn. This blog was intended as a way to pay that forward; pass on our knowledge to the … Continue reading The benefit of talking to others
BASIX, NatHERS and energy efficiency
I am by no means a tree hugging hippy, but I do value energy efficiency in a home. Part of the reason why we are knocking down and rebuilding is the incredibly poor thermal performance of our current uninsulated double brick home. The energy wastage in heating and cooling our home does annoy me, and … Continue reading BASIX, NatHERS and energy efficiency
The heart of the home
We've often heard the old cliche: the kitchen is the heart of the home. I've always wondered why. Is it because there is something soulful about a room whose purpose it is to feed and therefore sustain the family living there? It certainly isn't a space where my family spend the majority of their time … Continue reading The heart of the home
The compromise that pleases no one
A mate of mine once told me that he thought compromise was the most important thing in life. He reasoned that you won't always get what you want, so you need to learn to be able to live with an alternative that may not be perfect for you, but is a decent enough choice for … Continue reading The compromise that pleases no one
James Treble has great taste, and is possibly the world’s nicest bloke
It's been a few weeks since our selections appointments where we had the pleasure of meeting James Treble and benefitted from his advice. Because we are building the Waldorf, which is from Eden Brae's Prestige series, James' consultation at our selection appointments are complimentary (or rather, his fee is included in the overall price). The … Continue reading James Treble has great taste, and is possibly the world’s nicest bloke
Storm’s coming
It may not be a surprise to some, but to a couple of people with no house building experience, budgeting for stormwater hydraulics not only a monetary but from a time perspective is essential. If the slope of your land means that stormwater naturally falls towards any boundary other than the road, Eden Brae insist … Continue reading Storm’s coming
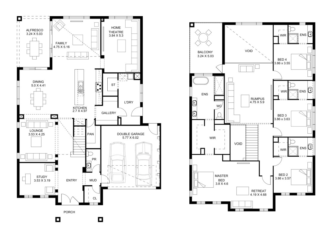
The floor plan
When we started this journey, my wife and I wanted four bedrooms, two bathrooms and a large open plan living area. Modest enough for a family of five I suppose, but still a substantial upgrade on our tiny ~90 year old three bedroom, one bathroom dwelling where the dining area was only large enough to … Continue reading The floor plan
Eden Brae selection days
Unlike some other project home builders, Eden Brae have the good sense to space out our selection appointments over two days. Day 1: flooring, internal and external colours, kitchen, plumbing fixtures Day 2: Jeldwen Group (doors, wardrobes and other internals), stairs, electrical, air conditioning, Abbey Blinds You would think that I would be excited by … Continue reading Eden Brae selection days

